売買 > 東京メトロ日比谷線

2億5,000万円
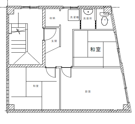
2階平面図(間取)松が谷ビル外観(外観)
物件の詳細を見る
価格
2億5,000万円
中古マンション
所在地 東京都台東区 松が谷4丁目  松が谷ビル(空ビル)
交通 東京メトロ日比谷線 入谷駅 徒歩4分
つくばエクスプレス 浅草駅 徒歩12分
築年月 1984/11 構造 鉄骨造
階建 地上 5階 部屋階数
面積 土地 43.99m² 建蔽率/容積率 80% / 600%
部屋番号 現況 空家
物件番号 20262193
設備・条件

前のページにもどる